Previous | Next | Discuss :: Free Advice (General Feng Shui)
Dear Gwen Bui,
Thank you for your layout plan.
Please see below:-
On 11/12/2002 1:26:00 AM, Gwen Bui wrote:
>Dear Cecil,
>
>Thank you so much for having
>this wonderful forum!
>
>Regarding the attached
>floorplan, can you help me
>with the following questions?
>
>1) In determining the shape of
>the house, do we include the
>garage? If so, it appears to
>be an indented SW house. If
>we don't count the garage,
>what shape house do you think
>it is?
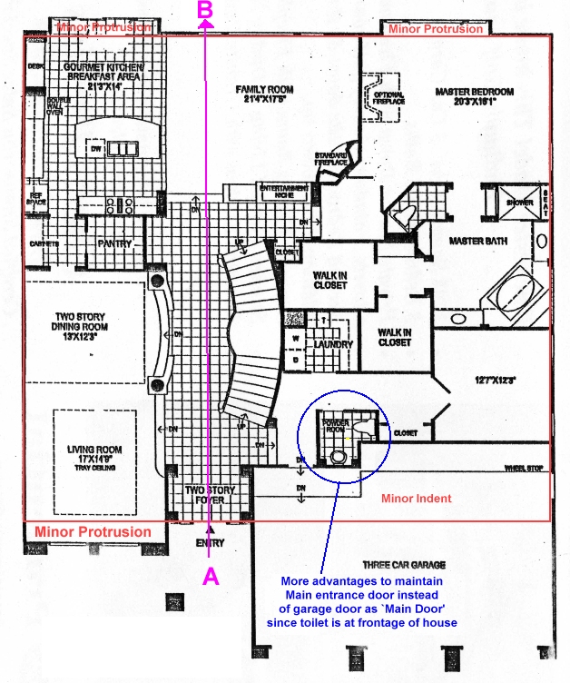
Please see attached illustration with the Shape of your house.
So far, the Shape looks rectangular.
The main concern is the toilet at the frontage of the house. And this is where, you should not make the garage door as your symbolic main entrance door.
>
>2) This is a two-sided
>stairway. Are the stairs in
>this house inauspicious?
>Would it help to chop off one
>side of the stairway so that
>we can only go up from one
>end?
In my opinion, your two-sided stairway does not seem to pose any major problems since there is a lift landing upstairs.
A two-sided stairway is in my opinion, very inauspicious if it is at the frontage of the house. Where, the two sets of steps join /meet together to the main entrance door. Also, from the layout plan, the front side of the stairway, seems safely tucked away at a side rather than fully exposed towards the main door.
Under your current situation, the main caution is to be careful not to allow qi to flow directly from marking A to marking B in a direct path.
If there is an open window at location marked B then, try to close them. We do not want beneficial qi to leak out of the house. But try to allow it to meander in the house.
Warmest Regards
Cecil
floorplan-with-comments.jpg
Please see attached illustration... (296,941 bytes)
|
|
[ Site Search | Forum Search | Picture Search | Site Map ] |
|
|
|
|
||
|
Help Desk: (65) 9785-3171 |
||
|
|
|
|
|
Highlights |
|
Extend your learning with Master Cecil Lee's Applied Feng Shui Made Easy Book. |
|
Site Navigation |
|
|
|
|
![]()